
2026-02-03 1:07:50
По случаю праздника Весны компания Handan Epident Package Machinery Co., Ltd. сообщила, что ключевые венгерские проекты завершили все производство и сборку и официально вступили в заключительную стадию ввода в эксплуатацию.
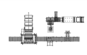
Основная задача этого ввода в эксплуатацию – реализовать саморазвивающееся репрезентативное оборудование компании – мембранную машину с холодным растяжением, заключительную настройку и интеграцию с международной передовой роботизированной системой Kuka (KUKA). Это означает, что автоматизация проекта и интеллектуальное строительство достигли самого важного технологического узла, и его успех обеспечит эффективную и скоординированную работу всей производственной линии.
Сообщается, что этот проект является важным макетом идеальной упаковочно
й машины на европейском рынке. Во время праздника Весны команда проекта по – прежнему придерживается своего поста, прилагает все усилия для проведения заключительного этапа ввода в эксплуатацию, стремится к успешному завершению проекта, чтобы приветствовать приход Нового года. Мы не только продемонстрировали техническую мощь предприятий, но и продемонстрировали профессионализм и ответственность китайских предприятий по производству высококачественного оборуд
ования для обслуживания международного рынка.

Показать часть оборудования